Project Description
Ordulular Union Schlafsaal und Kulturzentrum
Bagcilar / ISTANBUL
Grundstücksfläche 2374 m²
Gesamtbaufläche 13.727 m²
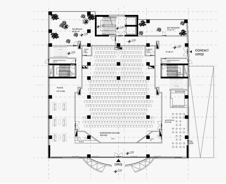
Lobby 637 m²
Café 100 m²
Studentenwohnheim (6 Stockwerke) 5.742 m²
Konferenzsaal 440 m²
Mehrzweckhalle 873 m²
Speisesaal 345 m²
Fitnessraum 142 m²
Tiefgarage 474 m²
Parkplatz im Freien 2.000 m²
Şakir Straße Mahmutbey BAĞCILAR/İSTANBUL
Project Details
| Location | Şakir sokak Mahmutbey BAĞCILAR/İSTANBUL |
| Surface Area | 13727m2 |








